- NEW
- 中古
中古 世田谷区上祖師谷2丁目
| 販売価格 | 所在地/交通 | 建物面積/ 土地面積 | 間取り |
|---|---|---|---|
|
7,199 万円 DOWN100万円 |
世田谷区上祖師谷2丁目 京王線 千歳烏山駅 徒歩19分 |
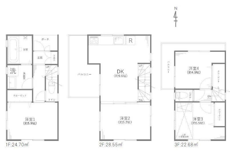
75.93m²/ 50m² | 4DK |
最寄駅周辺のご案内
住宅ローンのご相談も承ります
月々のお支払いは円になります
※返済金額はあくまでも目安となります。詳細は弊社までお問い合わせ下さい。
※住宅購入では、物件資金とは別に諸経費が必要です。(火災保険、税金、ローン費用等)
物件概要
| 価格 | 7,199 万円 DOWN100万円 | 月々の返済例 | 万円台 |
|---|---|---|---|
| 物件名 | 【中古一戸建て】東京都世田谷区上祖師谷2丁目 | ||
| 所在 | 世田谷区上祖師谷2丁目 | ||
| 交通 | 京王線「千歳烏山」駅徒歩19分 | ||
| 物件番号 | 211656607001 | 物件種別 | 中古一戸建て |
| 土地面積 |
50m² |
建物面積 | 75.93m² |
| 間取り | 4DK | 建物構造 | 木造3階建て |
| 築年月 | 2004年4月築 | 用途地域 | 第一種中高層住居専用地域 |
| 現況 | 空家 | 引渡時期 | 即時 |
| 小学校区 |
小学校区:世田谷区立塚戸小学校、世田谷区立烏山小学校 |
中学校区 |
中学校区:世田谷区立上祖師谷中学校、世田谷区立千歳中学校 |
| 土地権利 | 所有権 | 取引態様 | 媒介 |
| 設備 | |||
| 備考 | 売主3%物件資料は弊社ホームページよりダウンロード可能です! | ||
| こだわり項目 | |||
東京都世田谷区の街情報
世田谷区は東京都の南側に位置していて、東京都心や副都心までおよそ30分圏内で移動できる利便性が高いが自然も多いのが特徴です。東急田園都市線、小田急線、京王線など8つの鉄道路線が通っており都心部に移動しやすく、またバス路線も充実しています。閑静で治安も良く一人暮らしから年配の方まで住みやすいエリアといえます。

東京都世田谷区の行政事情(公式ホームページへ)
| ごみ | 家庭ごみ回収 | 無料 |
|---|---|---|
| 資源ごみ回収奨励制度 | 〇 | |
| 育児・出産 | 妊娠・出産に関する助成金 | ○ |
| 子ども医療費助成 | 18歳に達する日以後の最初の3月31日まで | |
| 児童手当 | 18歳に達する日以後の最初の3月31日まで | |
| 保育所待機児童数 | 58人(令和6年度) | |
| 私立幼稚園入園料・保育用補助金 | ○ | |
| 学童クラブ対象学年 平日・土曜実施時間 |
小学校1年生から3年生まで(但し、心身の発達などにより個別的配慮が必要な状態にある児童は6年生まで) 平日は午後6時15分まで。(延長午後7時まで)学校休業日は午前8時から午後6時15分まで。 |
|
| 教育資金金融/奨学金制度 | ○ | |
| 福祉 | 健康診断/ガン診断 | 関連情報はこちら |
| 介護保険料基準額 | 6,280円 | |
| 高齢者福祉他特色 | 関連情報はこちら |






