- NEW
- 新築
新築 狛江市中和泉5丁目
| 販売価格 | 所在地/交通 | 建物面積/ 土地面積 | 間取り |
|---|---|---|---|
| 5,980 万円(税込) |
狛江市中和泉5丁目 小田急小田原線 狛江駅 徒歩16分 |
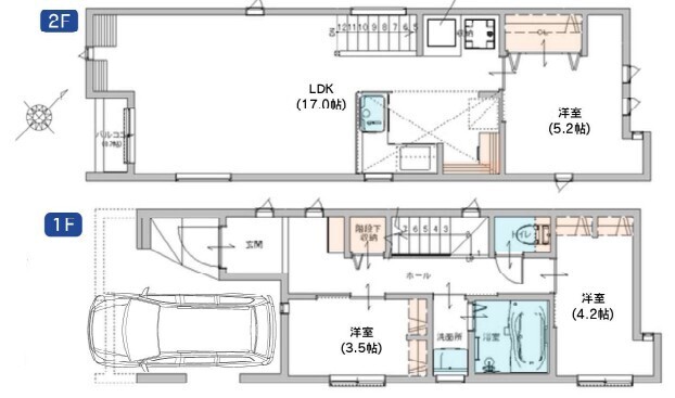
86.67m²/ 68.3m² | 3LDK |
最寄駅周辺のご案内
住宅ローンのご相談も承ります
月々のお支払いは円になります
※返済金額はあくまでも目安となります。詳細は弊社までお問い合わせ下さい。
※住宅購入では、物件資金とは別に諸経費が必要です。(火災保険、税金、ローン費用等)
物件概要
| 価格 | 5,980 万円(税込) | 月々の返済例 | 万円台 |
|---|---|---|---|
| 物件名 | 【新築一戸建て】東京都狛江市中和泉5丁目 | ||
| 所在 | 狛江市中和泉5丁目 | ||
| 交通 | 小田急小田原線「狛江」駅徒歩16分 | ||
| 物件番号 | 111562220001 | 物件種別 | 新築一戸建て |
| 土地面積 |
68.3m² |
建物面積 | 86.67m² |
| 間取り | 3LDK | 建物構造 | 木造2階建て |
| 築年月 | 2026年5月築 | 用途地域 | 第一種低層住居専用地域 |
| 現況 | 未完成 | 引渡時期 | 相談 |
| 小学校区 |
小学校区:狛江市立和泉小学校 |
中学校区 |
中学校区:狛江市立狛江第三中学校 |
| 土地権利 | 所有権 | 取引態様 | 媒介 |
| 設備 | |||
| 備考 | 延床面積ガレージ9.31㎡含む接道については販売図面をご確認 | ||
| こだわり項目 | |||
東京都狛江市の街情報
狛江市は、東京都の多摩地域東部にあり、世田谷区や調布市と隣接しています。新宿まで小田急線で20分、渋谷まで25分というように交通の便がよく都心まで行きやすいため、生活するのにとても便利な立地です。閑静な住宅街でバリアフリー設備も整っているため、子育て世帯から一人暮らしの方まで幅広い層におすすめです。

東京都狛江市のの行政事情(公式ホームページへ)
| ごみ | 家庭ごみ回収 | 有料 |
|---|---|---|
| 資源ごみ回収奨励制度 | ○ | |
| 育児・出産 | 妊娠・出産に関する助成金 | 〇 |
| 子ども医療費助成 | 乳幼児:0歳から6歳(6歳到達後最初の3月31日)まで 義務教育就学児:小学生1年生から中学生3年生まで 高校生等:15歳に達する日の翌日以後の最初の4月1日から18歳到達後の最初の3月31日まで |
|
| 児童手当 | 18歳に達する日以後の最初の3月31日まで | |
| 保育所待機児童数 | 12人(令和6年4月1日現在) | |
| 私立幼稚園入園料・保育用補助金 | ○ | |
| 学童クラブ対象学年 平日・土曜実施時間 |
小学校1年生から6年生まで 学童保育所:平日は午後5時まで。土曜日は午前8時15分から午後5時まで 小学校クラブ:平日は午後7時まで。土曜日は午前8時から午後7時まで 放課後クラブ:平日は午後6時45分まで。土曜日は午前8時30分から午後6時まで こどもクラブ(施設により異なる):平日は午後7時まで。土曜日は午前8時から午後6時まで |
|
| 教育資金金融/奨学金制度 | ○ | |
| 福祉 | 健康診断/ガン診断 | 関連情報はこちら |
| 介護保険料基準額 | 6,450円 | |
| 高齢者福祉他特色 | 関連情報はこちら |






